Encino Grande
Lote en venta en Tetelpan
VENTA
MXN 15,700,000
Detalle
Superficie del terreno 2079m²
Descripción
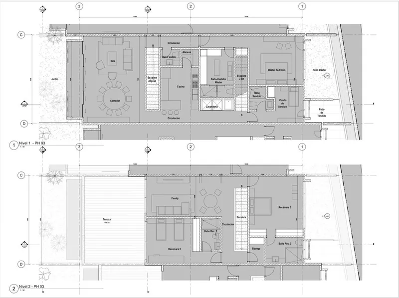
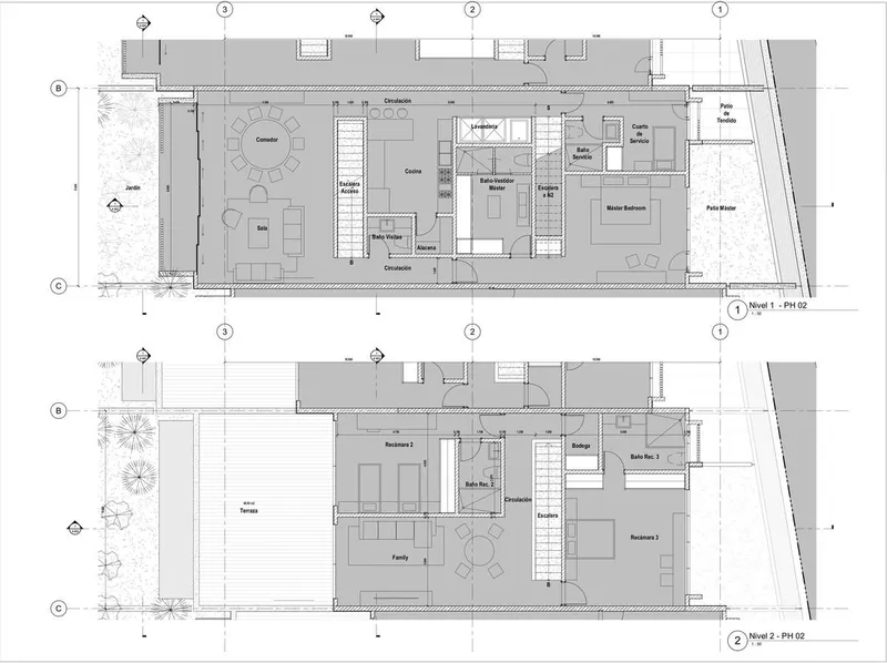
Terreno a la venta con planos completos de proyecto residencial de 2,079 metros cuadrados. Este terreno cuenta con varias oportunidades diferentes: 1) Terminar la casa a su gusto; 2) Proyecto desde cero para construir 7 departamentos; 3) Adaptar la casa ya construida y construir 3 departamentos nuevos en la parte de abajo; 4) Proyecto totalmente nuevo con ideas distintas. Ubicada en calle cerrada con doble vigilancia.
El pago podrá realizarse con recursos propios o con crédito hipotecario de cualquier institución, pública o privada, sujeto a la negociación que lleguen las partes de la compraventa y a las políticas de la institución correspondiente. En las operaciones de crédito el costo total se determinará en función de los montos variables de conceptos de crédito y gastos notariales. NOM-247
¿La propiedad está a buen precio?
Descúbrelo con nuestro mapa de valor m2 por alcaldía.








































